中古マンション

一橋学園ガーデニア 小平市学園西町2丁目の中古マンション[物件特徴]

  NEW

値下げ物件

掲載情報更新日:2026年04月09日 次回更新予定日:2026年04月23日

2,890万円

月々のお支払い例


万円


計算

※ 月々のお支払例は目安の試算となりますので、金融機関や商品によって借入金額の条件は異なります。詳しくは店舗までお問合わせください。

所在地

小平市学園西町2丁目

交通

西武多摩湖線『一橋学園』 徒歩1分 (約80m)
JR武蔵野線『新小平』 徒歩20分 (約1600m)

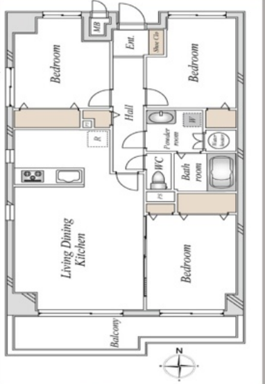
角部屋の3LDK。二部屋から出入りできる2WAYバルコニーがポイントです。
【間取り】

【間取り】

【外観】

【外観】

物件価格

2,890万円

月々のお支払い例

1,659.77

※金利1.20% 借入金額:物件価格、借入期間35年

物件の特徴

主な設備

オール電化

公営水道

下水道

給湯

コンロ三口

システムキッチン

バス

ユニットバス

バス1坪以上

シャワー

トイレ

B/T別室

室内洗濯機置場

洗面所独立

3面採光

フローリング

全室フローリング

クローゼット

クローゼット3箇所

シューズボックス

バルコニー

南面バルコニー

2WAYバルコニー

エレベーター

主な特徴

管理人日勤

角部屋

南向

アピールポイント

角部屋の3LDK。二部屋から出入りできる2WAYバルコニーがポイントで陽光が入りやすく家庭をより一層明るいものにしてくれます。

物件概要

担当エージェント:【営業】栗原 渉

「ハウスドゥ小平青梅街道駅東」は、小平市を中心に地域密着で不動産売買を行う会社です。青梅街道沿いに店舗を構え、駐車場も完備しております。初めてのマイホーム購入でも安心いただけるよう、資金計画から物件選び、住宅ローンのご相談まで丁寧に対応いたします。店内にはキッズスペースもご用意しており、ご家族で安心してご来店いただけます。来店予約も承っておりますので、お気軽にご相談ください。

価格 2,890万円 間取り 3LDK
物件種別 中古マンション
所在地 東京都小平市学園西町2丁目
アクセス 西武多摩湖線『一橋学園』 徒歩1分 (約80m)
JR武蔵野線『新小平』 徒歩20分 (約1600m)
専有面積 壁芯 73.81㎡ 所在階 8階建/4階部分
主要採光 南向 バルコニー 南向1.85㎡
その他
権利 所有権
保証・評価
リフォーム
総戸数 52戸 面積
築年月 1982年(昭和57年)05月築 建物構造 RC
施工会社
管理会社 管理方式 全部委託 日勤管理
駐車場
都市計画 市街化区域
用途地域 1種中高
建ぺい/容積率 60% / 200% 土地国土法
法令制限
小学区 第四小学校 徒歩13分 (約1000m) 中学区
現況 引渡 相談
管理費 14,000円/月 修繕積立金 21,400円/月
その他費用
周辺環境 セブンイレブン小平一橋学園駅前店 徒歩1分 (約70m)
くすりのセイジョー一橋学園駅前店 徒歩2分 (約110m)
一橋学園駅 徒歩3分 (約190m)
スーパーあまいけ 一橋学園店 徒歩3分 (約240m)
めぐみこども園(小平学園幼稚園) 徒歩3分 (約230m)
多摩信用金庫一橋学園支店 徒歩4分 (約270m)
小平警察署学園西町交番 徒歩5分 (約340m)
小平市立小平第4中学校 徒歩9分 (約650m)
一橋病院 徒歩9分 (約660m)
小平市立学園東小学校 徒歩11分 (約830m)
備考
物件番号 4646204 取引態様 媒介

電話で問合せ

通話料無料

0120-133-832

定休日:火曜日、水曜日
営業時間:9:30~18:00

物件番号をお伝えください

物件番号

4646204

【取扱い店舗】ハウスドゥ 小平青梅街道駅東取扱い店舗情報
ナビ女性画像

【取扱い店舗情報】

ハウスドゥ 小平青梅街道駅東
取扱会社:株式会社サニーエステート
所在地:〒187-0042 東京都小平市仲町652-3 マ・メゾンビル1階
フリーダイヤル:0120-133-832
電話番号:042-313-6808 FAX:042-313-6809
免許番号:東京都知事(1)第113474号
所属団体:(公社)東京都宅地建物取引業協会会員
(公社)全国宅地建物取引業保証協会会員
(公社)首都圏不動産公正取引協議会加盟
定休日:火曜日、水曜日
営業時間:9:30~18:00

もっとたくさん物件がみたい!という方へ

店頭で

店頭ではHPに掲載できない物件を併せて
153件をご案内できます!

Webで

ご希望にマッチした物件や、新着・値下げ情報を
即日メールにてお届けします!

ページトップ

ページトップ