新築一戸建て

小平市大沼町4丁目の新築戸建[物件特徴]

 

掲載情報更新日:2026年04月04日 次回更新予定日:2026年04月18日

5,799万円

月々のお支払い例


万円


計算

※ 月々のお支払例は目安の試算となりますので、金融機関や商品によって借入金額の条件は異なります。詳しくは店舗までお問合わせください。

所在地

小平市大沼町4丁目

交通

西武拝島線『小平』 徒歩23分 (約1840m)
西武新宿線『花小金井』 徒歩37分 (約2960m)

吹き抜けと三面採光がご家庭をより明るくしてくれます。
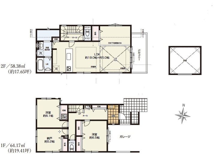
【間取り】

【間取り】

【外観】

【外観】

物件の特徴

主な設備

電気

公営水道

下水道

都市ガス

給湯

浄水器

食器洗浄乾燥機

コンロ三口

カウンターキッチン

システムキッチン

バス1坪以上

トイレ2箇所

室内洗濯機置場

洗髪洗面化粧台

洗面所独立

床暖房

LDK20畳以上

3面採光

吹抜

全居室複層ガラス

全室フローリング

クローゼット3箇所

床下収納

シューズボックス

バルコニー

主な特徴

2沿線利用可

総合病院徒歩10分以内

前道6m以上

2階建

アピールポイント

開放感と快適性を兼ね備えた2LDK+Sです。吹き抜けと二面採光がよりご自宅を明るくしてくれます。ガレージがあるので大事な車も守れます

物件概要

担当エージェント:成田 爽

「ハウスドゥ小平青梅街道駅東」は、小平市を中心に地域密着で不動産売買を行う会社です。
青梅街道沿いに店舗を構え、駐車場も完備しております。初めてのマイホーム購入でも安心いただけるよう、資金計画から物件選び、住宅ローンのご相談まで丁寧に対応いたします。
店内にはキッズスペースもご用意しており、ご家族で安心してご来店いただけます。
来店予約も承っておりますので、お気軽にご相談ください。

価格 5,799万円 間取り 2LDK+S
物件種別 新築一戸建て
所在地 東京都小平市大沼町4丁目730-21
アクセス 西武拝島線『小平』 徒歩23分 (約1840m)
西武新宿線『花小金井』 徒歩37分 (約2960m)
建物面積 公122.55㎡ 駐車場 あり 普通:1台
築年月 2026年(令和8年)04月予定 建築確認 第25UDI1W建07488号
建物構造 木造 2階建 工法
主要採光 東向 バルコニー 東向11.20㎡
保証・評価
土地面積 公103.58㎡(31.33坪) 接道 東側(公道)幅 約6.0m 間口 約6.93m
私道 セットバック
地目 宅地 地勢
権利 所有権
都市計画 市街化区域
用途地域 1種低層
建ぺい/容積率 60% / 150% 土地国土法
許可番号 建築基準法
法令制限 高度地区・準防火地域・日影制限有
小学区 第七小学校 徒歩17分 (約1300m) 中学区 小平第六中学校 徒歩15分 (約1200m)
現況 建築中 引渡 期日指定:2026年04月20日以降
その他費用
周辺環境 大沼町交番 徒歩3分 (約190m)
大沼町第3公園 徒歩3分 (約200m)
ファミリーマート小平大沼町2丁目店 徒歩4分 (約260m)
サンドラッグ小平大沼町店 徒歩11分 (約840m)
小平市消防団第4分団 徒歩13分 (約1000m)
小平市立第7小学校 徒歩14分 (約1110m)
ビッグ・エー東久留米弥生店 徒歩15分 (約1200m)
小平市立第6中学校 徒歩16分 (約1210m)
多摩済生病院 徒歩14分 (約1100m)
備考
物件番号 4609963 取引態様 媒介

電話で問合せ

通話料無料

0120-133-832

定休日:火曜日、水曜日
営業時間:9:30~18:00

物件番号をお伝えください

物件番号

4609963

【取扱い店舗】ハウスドゥ 小平青梅街道駅東取扱い店舗情報
ナビ女性画像

【取扱い店舗情報】

ハウスドゥ 小平青梅街道駅東
取扱会社:株式会社サニーエステート
所在地:〒187-0042 東京都小平市仲町652-3 マ・メゾンビル1階
フリーダイヤル:0120-133-832
電話番号:042-313-6808 FAX:042-313-6809
免許番号:東京都知事(1)第113474号
所属団体:(公社)東京都宅地建物取引業協会会員
(公社)全国宅地建物取引業保証協会会員
(公社)首都圏不動産公正取引協議会加盟
定休日:火曜日、水曜日
営業時間:9:30~18:00

もっとたくさん物件がみたい!という方へ

店頭で

店頭ではHPに掲載できない物件を併せて
153件をご案内できます!

Webで

ご希望にマッチした物件や、新着・値下げ情報を
即日メールにてお届けします!

ページトップ

ページトップ